Dotaz:
Jak se připojí siréna OS365 k zabezpečovací ústředně SP1738?
Odpověď:
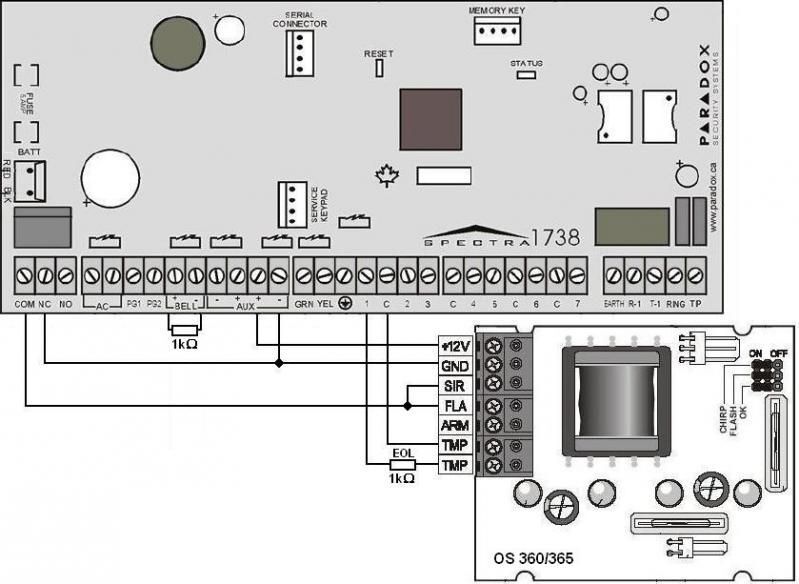
Na obr.1 je hardwarové zapojení, kde je siréna připojena k poplachovému relé, které kopíruje výstup BELL. Na svorky BELL+ a – připojíte vnitřní sirénu (nezálohovanou) nebo musíte k těmto svorkám připojit 1kΩ odpor, protože tyto svorky jsou dohlíženy.
Jak se připojí siréna OS365 k zabezpečovací ústředně SP1738?
Odpověď:
Na obr.1 je hardwarové zapojení, kde je siréna připojena k poplachovému relé, které kopíruje výstup BELL. Na svorky BELL+ a – připojíte vnitřní sirénu (nezálohovanou) nebo musíte k těmto svorkám připojit 1kΩ odpor, protože tyto svorky jsou dohlíženy.
Galerie
obr.1


